180 909 ₽/м²
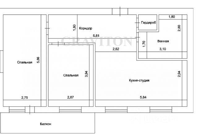
Арт. 125459027 Продается трехкомнатная квартира в центре города, район "Родник". Квартира имеет удобную планировку "распашонка", окна выходят на обе стороны дома. Общая площадь: 57 кв.м., возможность перепланировки в "евротрешку". Просторные комнаты и светлая кухня создают атмосферу уюта и комфорта. Удобства и инфраструктура Квартира оборудована всем необходимым для комфортного проживания: Современные и новые сантехнические приборы Качественная отделка с использованием современных строительных материалов Застекленный балкон с видом на горы Расположение квартиры в центре города обеспечивает легкий доступ ко всем необходимым объектам инфраструктуры: Магазины и супермаркеты Кафе и рестораны Образовательные учреждения, национальная гимназия, несколько детских садов, стадион Уютные скверы и зоны отдыха, Родник, гора Тугая, в шаговой доступности центральная площадь Остановка общественного транспорта Для получения дополнительной информации и организации просмотра квартиры, пожалуйста, свяжитесь с нами по указанному телефону. Обеспечим юридическое сопровождение сделки. Гарантия надежности и безопасности. Профессиональная деятельность агентства недвижимости сертифицирована и застрахована на 35млн.руб. Продам 3-комнатную квартиру в центре в Горно-Алтайске.















































