











242 323 ₽/м²
ПОДХОДИТ ПОД СЕМЕЙНУЮ ИПОТЕКУ 6% ЖК от ведущего застройщика Республики Алтай и входящего в ТОП 3 Барнаула! Город Гор самый масштабный и самый перспективный проект в Республике Алтай. При поддержке Республики, Сбера и множества инвесторов из каждого уголка страны. Этот проект на слуху у всех! Победитель жилищного конгресса в г. Москва , в номинации Лучший региональный проект комплексной застройки! Идеальная локация , Майма это как 0 километр Республики, в какую сторону бы вы не поехали, старт всегда будет в Майме. А значит в целях пассивного дохода с аренды варианта лучше и быть не может! Для жизни так же замечательный вариант, все необходимое рядом! Майма разрастается и в ближайшие годы рядом построят огромный ТРЦ единственный в своем роде в Республике, а так же Физкультурно-оздоровительный комплекс регионального уровня, термы с доступнейшими ценами и многое другое, уже идет строительство полным ходом! Республика Алтай станет курортом мирового уровня, это реальные планы и цели, которые уже воплощают в жизнь, не последние люди нашей страны! Международный терминал аэропорта, свой Дисней ленд, курорт Манжерок завершен только на половину, новая игорная зона в Чемале и многое другое!! Торопитесь, цены на квартиры поднимаются согласно графику, финансовая модель по запросу.



114 063 ₽/м²
Арт. 58699022 Светлая, просторная благоустроенная 3к квартира в хорошем состоянии, площадью 64 м.кв. в с. Майма! В квартире выполнен ремонт, комнаты изолированные. Рядом детский сад, в шаговой доступности магазин, остановка. Документы готовы, один собственник, рассмотрим любую форму оплаты. Возможен обмен на дом. Обеспечим юридическое сопровождение сделки. Гарантия надежности и безопасности. Профессиональная деятельность агентства недвижимости сертифицирована и застрахована на 35 млн.руб.






248 000 ₽/м²
Жилой микрорайон "Город Гор" представляет собой комплексную застройку, состоящую из монолитно-кирпичных зданий. Застройщиком спроектированы квартиры с различными планировками. Благоустройство прилегающей территории включает в себя организацию детских игровых и спортивных площадок, гостевой автостоянки, а также озеленение. В шаговой доступности детские сады, школы, продуктовые магазины, остановки общественного транспорта.



159 420 ₽/м²
Продам квартиру в с.Майма в районе Березовой рощи. Косметический ремонт, раздельный сан узел, просторная кухня, застекленный балкон. Вся мебель остается новым собственникам. Большая парковка, детская площадка. Автобусная остановка в радиусе 300м. Два взрослых собственника. Обременений нет. Агентство недвижимости "Этажи" — Ваш надежный партнер в мире недвижимости! -Гарантия безопасности сделки. Защитим интересы клиента в спорных ситуациях -Найдем для вас выгодные условия по ипотеке -Поможем зарегистрировать сделку, даже если продавец и покупатель находятся в разных городах -Полное сопровождение процесса сделки нашими специалистами -96% наших клиентов готовы рекомендовать своего риелтора знакомым и друзьям Код пользователя: 124729 Номер в базе: 10270202









170 732 ₽/м²
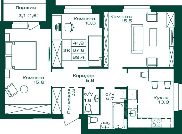
Продам 3-х комнатную квартиру в отличном районе с. Майма. Комнаты изолированные, кухня, 2 спальни и просторная гостиная, теплая лоджия 7 кв. метров. Раздельный санузел. Вся инфраструктура в шаговой доступности: школы, детские сады, спортивный комплекс, парк, сетевые магазины, аптеки, поликлиника и автобусная остановка. Двор тихий и уютный, есть парковка для автомобиля. Один взрослый собственник. Обременений нет. Это отличный вариант для создания семейного гнёздышка. Прекрасный вариант для семейного гнезда. Юридическое сопровождение следки. Гарантия безопасности. Код пользователя: 178215 Номер в базе: 9247672 Этажи Чёрная пятница



165 225 ₽/м²
Продажа 2-комнатной квартиры с ремонтом у реки Катунь. Не требует вложений! Текст объявления: Предлагается к продаже двухкомнатная квартира, полностью готовая к комфортному проживанию. Вам не придётся тратиться на ремонт или мебель — всё уже сделано с умом и для жизни. О квартире: Планировка: Изолированные комнаты, окна выходят на разные стороны. Это гарантирует прекрасную инсоляцию (солнечный свет в течение всего дня) и эффективное проветривание. Ремонт: Выполнен качественно: натяжные потолки, раздельный санузел. Дополнительно: Практичная кухонная мебель и встроенные шкафы остаются новому владельцу в подарок. Балкон: Застеклён современными пластиковыми стеклопакетами, что позволяет использовать это пространство круглый год. О локации: Инфраструктура: Всё самое необходимое — школы, детские сады, магазины и новая детская площадка — в шаговой доступности. Главный козырь: Всего 200 метров от дома до живописной реки Катунь! Ваш собственный курорт для летнего отдыха и прогулок. Транспорт: Остановка общественного транспорта рядом с домом. Быстрый выезд в город и на трассу. До аэропорта — около 5 минут на автомобиле. Дом и двор: Прилегающая территория благоустроена, в подъезде чистота и порядок. Во дворе достаточно парковочных мест. Условия продажи: Квартира продаётся одним взрослым собственником. Рассматривается вариант обмена на дом в Майме. Обеспечивается полное юридическое сопровождение сделки. Код пользователя: 191544 Номер в базе: 10127886






255 000 ₽/м²
Жилой микрорайон "Город Гор" представляет собой комплексную застройку, состоящую из монолитно-кирпичных зданий. Застройщиком спроектированы квартиры с различными планировками. Благоустройство прилегающей территории включает в себя организацию детских игровых и спортивных площадок, гостевой автостоянки, а также озеленение. В шаговой доступности детские сады, школы, продуктовые магазины, остановки общественного транспорта.



161 519 ₽/м²
Продам 2-х комнатную квартиру в уникальном проекте Горного Алтая жилой квартал ПЕРВОГОРЬЕ Семейная ипотека Жилой комплекс на границе Горно-Алтайск - Майма . Большая благоустроенная территория и собственная инфраструктура у подножья Алтайских гор Живописная локация , высокая транспортная доступность, аэропорт , курорт Манжерок Квартира общей площадью 53.5 мкв . Преимущества этой квартиры: Уникальная планировка (в других корпусах нет такой). 1ая очередь сдачи - на 1 год раньше всех домов в квартале. Большая кухня 15.3 мкв Две лоджии Выходит на солнечную сторону Переуступка Выгодная инвестиция - окупаемость 7 лет. Звоните, мы обсудим цену.















178 000 ₽/м²
Код объекта: 1818277. Уникальное предложение для тех, кто ищет комфортное жильё в живописном месте! Продаётся однокомнатная квартира в новостройке в селе Майма, Республика Алтай. Квартира расположена на 4 этаже 8-этажного панельного дома. Общая площадь составляет 53,7 кв. м, из которых 30,7 кв. м — жилая площадь, 8 кв. м — кухня. Высота потолков — 2,7 м. В квартире уже выполнена качественная предчистовая отделка, по квартире сделана разводка электричества. Выполнена горизонтальная разводка отопления по полу и качественная стяжка, благодаря которой можно сразу приступать к напольному покрытию. Одно из преимуществ этой квартиры — наличие лоджии, где можно разместить зону отдыха или хранить вещи. Подземная парковка обеспечит безопасность вашего автомобиля. Жилой квартал "Первогорье" - станет по-настоящему уникальным проектом для Горного Алтая. Окруженный величественной природой Алтая, он совместит в себе свободу загородной жизни с современным городским комфортом, продуманным до мелочей. Комплексная застройка в локации, большая благоустроенная территория и собственная инфраструктура сделают это место настоящим оазисом у подножья алтайских гор. Не упустите возможность стать обладателем этой уютной квартиры в одном из самых живописных мест Республики Алтай! Позвоните нам прямо сейчас! Мы гарантируем безопасную сделку и юридическую поддержку нашим Клиентам. Поможем одобрить ипотеку с сниженной ставкой.






























248 000 ₽/м²
Жилой микрорайон "Город Гор" представляет собой комплексную застройку, состоящую из монолитно-кирпичных зданий. Застройщиком спроектированы квартиры с различными планировками. Благоустройство прилегающей территории включает в себя организацию детских игровых и спортивных площадок, гостевой автостоянки, а также озеленение. В шаговой доступности детские сады, школы, продуктовые магазины, остановки общественного транспорта.












269 000 ₽/м²
Жилой микрорайон "Город Гор" представляет собой комплексную застройку, состоящую из монолитно-кирпичных зданий. Застройщиком спроектированы квартиры с различными планировками. Благоустройство прилегающей территории включает в себя организацию детских игровых и спортивных площадок, гостевой автостоянки, а также озеленение. В шаговой доступности детские сады, школы, продуктовые магазины, остановки общественного транспорта.












248 000 ₽/м²
Жилой микрорайон "Город Гор" представляет собой комплексную застройку, состоящую из монолитно-кирпичных зданий. Застройщиком спроектированы квартиры с различными планировками. Благоустройство прилегающей территории включает в себя организацию детских игровых и спортивных площадок, гостевой автостоянки, а также озеленение. В шаговой доступности детские сады, школы, продуктовые магазины, остановки общественного транспорта.






248 000 ₽/м²
Жилой микрорайон "Город Гор" представляет собой комплексную застройку, состоящую из монолитно-кирпичных зданий. Застройщиком спроектированы квартиры с различными планировками. Благоустройство прилегающей территории включает в себя организацию детских игровых и спортивных площадок, гостевой автостоянки, а также озеленение. В шаговой доступности детские сады, школы, продуктовые магазины, остановки общественного транспорта.






269 000 ₽/м²
Жилой микрорайон "Город Гор" представляет собой комплексную застройку, состоящую из монолитно-кирпичных зданий. Застройщиком спроектированы квартиры с различными планировками. Благоустройство прилегающей территории включает в себя организацию детских игровых и спортивных площадок, гостевой автостоянки, а также озеленение. В шаговой доступности детские сады, школы, продуктовые магазины, остановки общественного транспорта.












248 000 ₽/м²
Жилой микрорайон "Город Гор" представляет собой комплексную застройку, состоящую из монолитно-кирпичных зданий. Застройщиком спроектированы квартиры с различными планировками. Благоустройство прилегающей территории включает в себя организацию детских игровых и спортивных площадок, гостевой автостоянки, а также озеленение. В шаговой доступности детские сады, школы, продуктовые магазины, остановки общественного транспорта.






| 🔷 Средняя цена продажи: | 12,2 млн руб. |
| 🔷 Средняя цена за м2: | 246 тыс. руб./м² |
| 🔷 Минимальная стоимость: | 7,4 млн руб. |
| 🔷 Самый дорогой объект: | 20,6 млн руб. |